• 75 000 € vente
  • 75 000 € vente
  • 75 000 € vente
  • 75 000 € vente
  • 75 000 € vente
  • 75 000 € vente
  • 75 000 € vente
  • 75 000 € vente
  • 75 000 € vente
  • 75 000 € vente
  • 75 000 € vente
  • Type: Maison
  • Surface: 590m2
  • 24 Chambres
  • Lalouvesc
 Déposer mon dossier

Maison pièces de 590 à Lalouvesc

75 000 € - Ref. 191PR

Maison à la Louvesc - La régie Goudard Patot vous propose :

- En Exclusivité. A la Louvesc, maison de village en pierres sur six niveaux (ancien hôtel-bar-restaurant) d'une superficie de 590 m² en plein centre du village.

-- Vous recherchez à réaliser un projet de plusieurs logements ou avoir la possibilité de créer un lieu de vie artistique ou autre, alors n'hésitez pas et venez visiter ce bien.

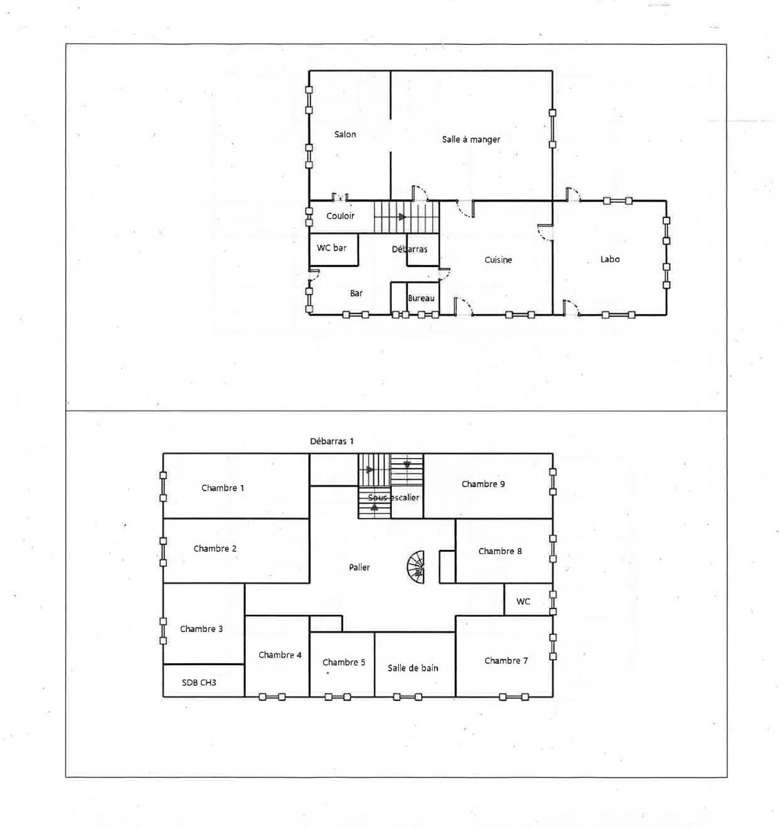
-- 1er niveau : sous-sol (caves).
-- 2ème niveau : rez-de-rue (entrée, bar, salon, salle à manger cuisine et laboratoire).
-- 3ème niveau :1er étage (8 chambres, 1 salle de bain commune et dégagement).
-- 4ème niveau : 2ème étage (8 chambres dont 1 avec douche, 1 salle de bain commune et dégagement).
-- 5ème niveau : 3ème étage (8 chambres dont 4 avec douche, 1 salle de bain commune et dégagement).
-- 6ème niveau : combles aménageables.

--- Informations diverses :
-- Des travaux de réhabilitation sont à prévoir.
-- Chauffage central au fioul HS, à remplacer.
-- Combles aménageables.
-- Taxe foncière : 1045 €.
-- DPE : E.

-- Les informations sur les risques auxquels ce bien est exposé sont disponibles sur le site https://www.georisques.gouv.fr/


-- Mandat de vente Réf.191PR. Honoraires à la charge du vendeur.
Vous pouvez consulter les barèmes d'honoraires à l'adresse suivante : https://goudard-patot.com/telechargements/NOS_HONORAIRES.pdf .

-- Contactez Patrice RIQUELME 06 85 78 35 03, l'agence au 04 75 33 28 25 ou contact@goudard-patot.com. Honoraires à la charge du vendeur.
Vous pouvez consulter les barèmes d'honoraires à l'adresse suivante : https://goudard-patot.com/telechargements/NOS_HONORAIRES.pdf . Montant estimé des dépenses annuelles d'énergie pour un usage standard : entre 21 700 et 29 420 euros. Prix moyens des énergies indexés en 2021. Les informations sur les risques auxquels ce bien est exposé sont disponibles sur le site Géorisques : https://www.georisques.gouv.fr

Informations détaillées

  • Nombre de chambre(s) : 24
  • Surface Habitable : 590
  • Nombre de Niveaux : 5
  • Catégorie : Maison
  • Etat Général : Travaux à prévoir
  • Mitoyennete : 1 côté
  • Chauffage : Individuel
  • Mécanisme de chauffage : Radiateur
  • Mode Chauffage : Fuel
Politique liée au démarchage téléphonique : Nous vous informons de votre droit d'inscription à la liste d'opposition pour le démarchage téléphonique et vous suggérons de vous inscrire sur Bloctel. Bloctel est la liste d'opposition au démarchage téléphonique sur laquelle tout consommateur peut s'inscrire gratuitement afin de ne plus être démarché téléphoniquement par un professionnel avec lequel il n'a pas de relation contractuelle en cours, conformément à la loi n°2014-344 du 17 mars 2014 relative à la consommation. La loi précise qu'il est interdit à tout professionnel, directement ou par l'intermédiaire d'un tiers agissant pour son compte, de démarcher téléphoniquement un consommateur inscrit sur cette liste, à l'exception des cas énumérés par la loi.

** Les informations recueillies sur ce formulaire peuvent être enregistrées dans un fichier informatisé par REGIE GOUDARD-PATOT pour gérer votre demande de contact. Les données sont conservées pendant la durée de gestion de la demande de contact. Vous pouvez accéder aux données vous concernant, les rectifier, demander leur effacement ou exercer votre droit à la limitation du traitement de vos données en contactant "REGIE GOUDARD-PATOT" par courrier à l'adresse suivante : 6 Boulevard de la République - 07100 Annonay. Consultez le site cnil.fr pour plus d'informations sur vos droits.